

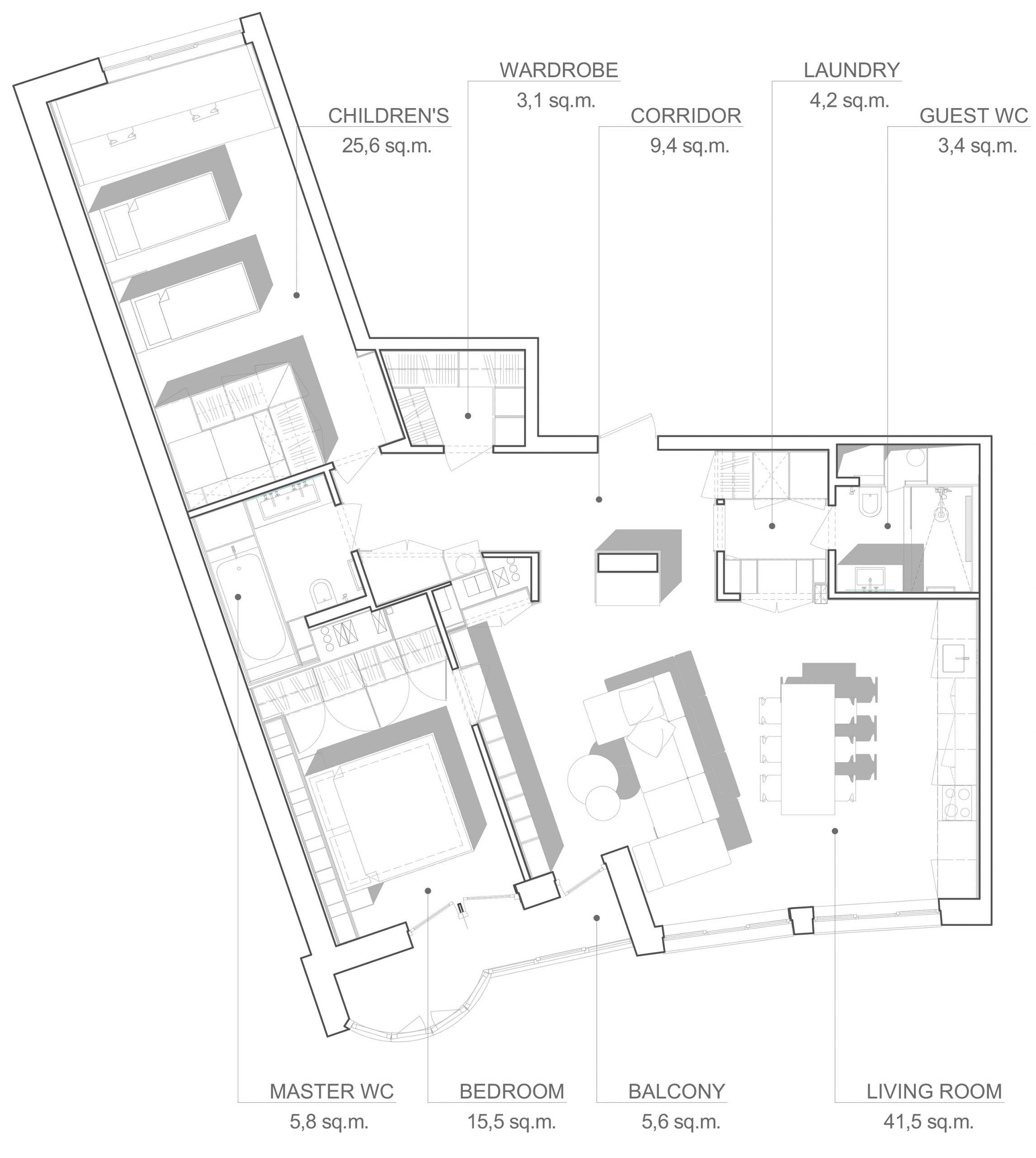
GENERAL AREA
The ideal solution for this project was to combine two rooms to optimize the space, so we managed to create a common area. At the initial stage of planning, according to the plan, the kitchen was on the left, and the recreation area was on the right, but after we dismantled the walls and lowered the windows that opened the view of the Dnieper, we realized that the kitchen and the living room should be swapped, despite the fact that we already done half the project. We did the redevelopment at our own expense and in the shortest possible time.
All common area furniture was designed by us and made by our contractors. But the vintage chairs of the beginning of the last century, which we found on the alder tree and restored for a very high amount compared to the cost of the chairs themselves, add a special piquancy to the kitchen.
As for the living room, the two-sided sofa perfectly zones the space in it. Here you can spend time reading books or watching movies.
Since the customers are very fond of reading books and have a huge collection, we decided to use this fact and make a “metaphorical” connection between the living room and the bedroom. The metaphor of “entrance through wisdom” is to pass from the living room through the bookshelf through special doors, the search for which was a real challenge for us.
At first we planned to find old doors, but it was quite difficult to find the right size for our concept, so we developed our own design and recreated it.


MASTER BEDROOM
The bedroom was created exclusively for relaxation, without a TV-zone and unnecessary furniture, and performs the main function – it provides a comfortable stay.
Complementing the interior is a bookcase at the head of a double bed and minimalist bedside tables made from a single sheet of metal to order by the company.
We managed to save space and minimize the furniture in the room thanks to a glass cabinet made of a thin metal profile. Wardrobe, organically fits into the overall style in terms of functionality and appearance.


MASTER BATH AND GUEST BATHROOM
The bathroom is done in white and black with an emphasis on vintage furniture, which we also restored. The washbasin with 2 taps and markings on the floor grabs attention as soon as you enter, as the white crosses indicate the location towards the washbasin.
A special feature of the room is a cantilever bedside table under the sink – antiques, the restoration of which was very expensive and 3 times higher than the cost of the bedside table itself.
The guest bathroom can be accessed through the laundry block. This room is white with black accents. The shower is separated by a glass glass partition, all plumbing is black, and a wooden cabinet under the sink and an illuminated mirror serve as an addition.

CORRIDOR
In the corridor itself, there are many bright accents on the walls that complement the minimalism of the room. The entrance area is made in deep ultramarine color.
The floor consists of 2 zones: light parquet and tiles. Zoning the room was a practical solution that we managed to fit into the overall concept of the interior in terms of style.
Due to the peculiarities of the house itself, initially the walls of the corridor did not have clear shapes, therefore, in order to achieve the desired geometry, we leveled it with cabinet furniture, which at the same time serves as a place for various things and utensils. During the installation of furniture, we had an unusual idea – to make a place for a pet right in the closet, which perfectly suited the needs of the owners.
The implementation of this project took three whole years, but we are not at all upset because it turned out to be a really worthwhile and interesting, and most importantly, a unique project, each room of which has its own characteristics.
Creating an interior is not always easy in terms of the time and resources spent, but we are sure that we will cope with any challenges, because our experience is enough to implement any projects, and MOSKOVSKAYA is a vivid example of this.




CHILDREN’S
We always carry out the design of the nursery with special care so that the room meets all the requirements for safety and functionality. Our task was to correctly distribute the space for two children while maintaining the working and play areas.
The working area is represented by a table with two seats. This is a bright and comfortable place with everything you need for an exciting learning process.




PROCESS
EPILOGUE
The implementation of this project took three whole years, but we are not at all upset because it turned out to be a really worthwhile and interesting, and most importantly, a unique project, each room of which has its own characteristics.
Creating an interior is not always easy in terms of the time and resources spent, but we are sure that we will cope with any challenges, because our experience is enough to implement any projects, and MOSKOVSKAYA is a vivid example of this.








